//Calle Alcalá (Ref.2059)

Piso
Madrid, Madrid capital, Barrio de Salamanca
Calle Alcalá (Ref.2059)
2.600.000 €
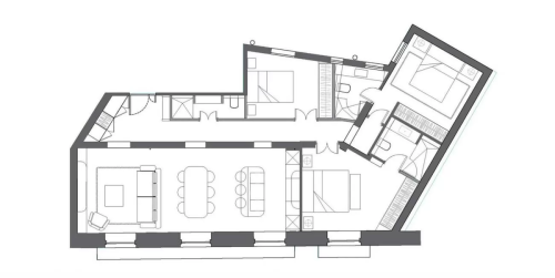
Gentile Home RE/MAX presenta una oportunidad excepcional de adquirir una propiedad sofisticada en una de las ubicaciones más prestigiosas de Madrid, específicamente en el entorno de la emblemática calle Alcalá, muy cerca de la intersección con la calle Goya. Esta vivienda de 140 se encuentra actualmente como un proyecto en ejecución, lo que permite al futuro propietario sumergirse en la exclusividad de elegir entre un diseño en blanco o la propuesta estética de la reconocida "H Harp Collection". Situada en una quinta planta, la propiedad goza de una entrada de luz natural privilegiada que realza cada volumen y detalle arquitectónico, creando una atmósfera de serenidad y calidez difícil de encontrar en el centro urbano.
El espacio ha sido concebido bajo una visión de amplitud y modernidad, destacando un generoso salón-comedor integrado con una cocina de diseño, ideal para quienes valoran los espacios abiertos y la interacción social en el hogar. La distribución privada cuenta con tres amplios dormitorios y tres baños completos, asegurando el máximo confort y funcionalidad para cada miembro de la familia o invitados. En cuanto a sus características técnicas y servicios, la finca dispone de portero físico para una seguridad y atención constantes, calefacción individual y un IBI anual de 921,00 €, todo ello enmarcado en un activo inmobiliario valorado en 2.600. 000 €.
Residir en esta zona privilegiada de Goya y Alcalá ofrece una calidad de vida incomparable, donde la elegancia residencial se combina con la mejor oferta de servicios de la capital. A pocos minutos a pie, se puede disfrutar de la naturaleza en el Parque del Retiro o de la mejor cultura en el Nuevo Teatro Alcalá, además de contar con una oferta gastronómica y de hostelería de primer nivel en los alrededores de Jorge Juan y Príncipe de Vergara. La zona está perfectamente dotada de farmacias, mercados de abastos tradicionales, centros comerciales como Fnac y una conectividad absoluta mediante transporte público, incluyendo metro, múltiples líneas de autobús y paradas de taxi que facilitan el desplazamiento por toda la ciudad. No cobramos honorarios al comprador. Para más informaciones o concretar visitas contáctanos.
¿Le gustaría que le enviara los detalles técnicos de las dos opciones de diseño disponibles para que pueda empezar a imaginar los acabados de su futuro hogar?
Características
140
Metros construidos
3
Baños
3
Habitaciones
140
Gastos comunidad
3
Metros usables
1
Plantas
Equipamiento
Armarios
Aire Acondicionado
Ascensor
Acceso a la calle
¿Te interesa esta propiedad?
Déjanos tus datos y un asesor se pondrá en contacto contigo.
O llámanos directamente
+34 913 430 876